萬科金域華府位于天府新區的老華陽城區,因其房價較溫和,頗受剛需購房家庭的喜歡。城南會聚了成都的高新產業、CBD項目,看似一切都在高速開展,生活也要加速行進,但老華陽城區卻在通知你,在成都就是要過溫馨閑適的生活。位于老華陽城區的萬科金域華府不只價錢溫和,還能享用成熟完善的周邊配套。下面我們就來理解一下萬科金域華府最新加推信息,萬科金域華府周邊配套如何?

萬科金域華府最新加推信息
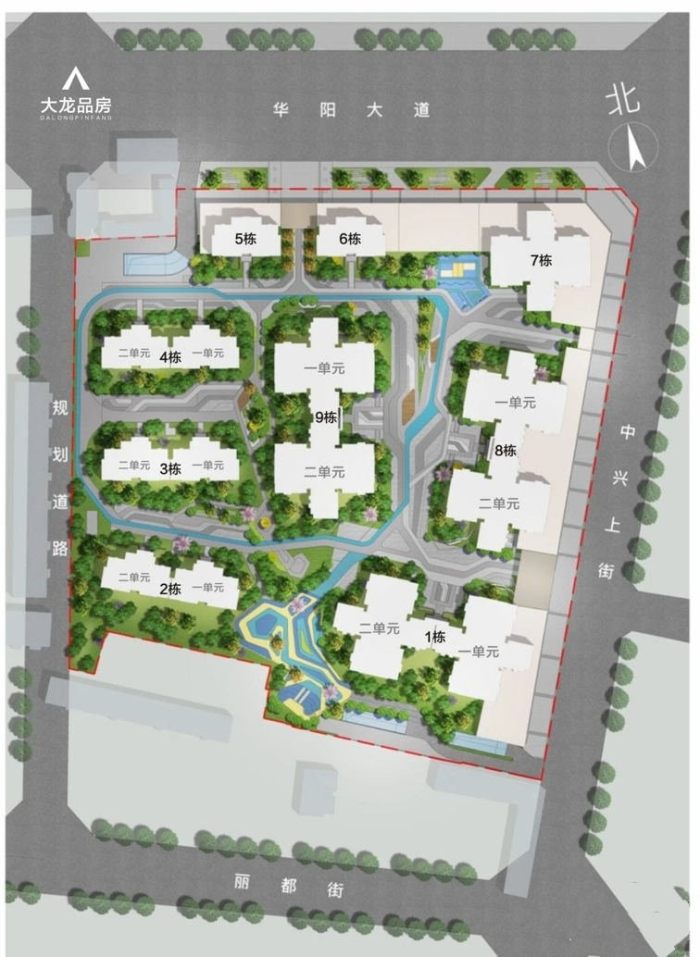
萬科金域華府,總占地面積55畝,產品類型為高層+洋房,容積率為4.2,開發商和物業均是萬科。萬科金域華府最新加推房源有1125套,產品建面為115-127-138㎡,裝修狀況為清水。項目本次預售1、8、9棟的高層和2、3、4棟洋房,戶型分別為115㎡套三有660套,138㎡套四有330套,127㎡套四洋房有135套。一共就3個戶型,幾乎和萬科天府公園城一模一樣。據置業顧問介紹,本次預售1125套房源,高層均價預計清水2,洋房均價2.4,也就是說總價可能在200萬起步。因為項目容積率較高,所以因為采光問題的公寓性高層住宅較多,而這部分房源單價也會相對更低。

萬科金域華府周邊配套如何
萬科金域華府位于老華陽城區,周邊基本都是年份久遠的居民房,也就是說城市界面老舊,且未來多年不會有太大變化。地鐵一號線華陽站距離1公里,步行約14分鐘,駕車出行的話天府大道、益州大道、劍南大道、梓州大道都挺方便。基本的生活配套區域內完全可以滿足,但大型超市比如伊藤、家樂福、沃爾瑪、歐尚、山姆會員店等則需要駕車出行。附近的學校有華陽、新城幼兒園、華陽實驗小學、華陽中學附屬小學、華陽中學、華陽第一中學等,教育資源豐富,護航孩子成長。該項目附近有占地約6000畝的3A級景區南湖公園,還有維也納公園、會龍公園等湖濱公園,生態資源豐富。

華陽片區近十年來所供新房屈指可數,這次萬科金域華府的最新加推,可以說是老華陽城區的煥新之作。而且在毗鄰高新的板塊中,華陽片區是生態資源最豐富的片區。新加推的萬科金域華府占據了很大的區位優勢。該項目的缺點就是片區的年代感較久遠,城市界面老舊,小區容積率較高。不過在附近工作生活的剛需購房家庭還是可以考慮一下的。以上就是萬科金域華府最新加推信息,萬科金域華府周邊配套如何的全部內容了。更多資訊請持續成都購房網,成都購房網讓買房如此簡單。