日期:
來源:購房網收集編輯:admin
城投置地梧桐集價格14500元/平米,規劃面積90679.6 ㎡。橫看成嶺側成峰,遠近高低各不同。同樣的樓盤從不同的角度看,感受也不盡相同。城投置地梧桐集樓盤介紹城投置地梧桐集位于金牛區聚霞路北,屬于木龍灣社區,天回鎮派出所管轄,是以“聚.才智、動.生活、藝.悠然、享.童趣、悅.鄰里”為五大主題分樓棟進行打造,以折線的手法打造品質舒適的公園式現代社區。。
城投置地梧桐集戶型為107平-137平,停車場數1632個,銀行中國郵政銀行、中國農業銀行、中國工商銀行等,城投置地梧桐集項目基于產品與客戶需求產生了強烈的共振與共鳴!得益于項目優越區位價值、精工品質的產品、以及對全維度美好生活的深度思考,滿足購房者居住需求,終將贏得一城熱愛。

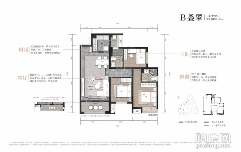
城投置地梧桐集B戶型(3室2廳,107平,南)

城投置地梧桐集C戶型(3室3廳,117平,南)

城投置地梧桐集D戶型(3室2廳,117平,南)
城投置地梧桐集物業公司城投中海物業,建筑形式高層、洋房、疊拼,公交聚霞路站(公交站)、聚霞路東(公交站)、地鐵北部商貿城站(公交站),以科學化的管理經驗,獨到的服務體系,每天進出時的微笑迎候,日日常新的保潔、綠化服務,24*的貼心響應,時刻體貼您的幸福生活。